top of page

HOUSE B

renovation of an apartment in Valencia, Spain, developed design

year: 2018   

size: 80m²

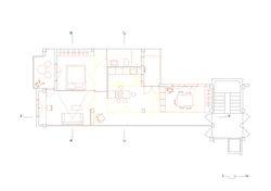
01_houseB_plan
02_houseB_plan_E
03_houseB_views
bottom of page